Kempen Infaq Pembinaan Surau Sekolah Taman Tun Teja, Rawang
“70% Sudah Siap, Hanya 30% Sahaja Lagi Dalam Pembinaan”
“Sejak dari 2017 lagi mereka merancang, Alhamdulillah tahun ini impian sekolah ini tercapai. Jom bantu mudahkan urusan mereka”
Setiap kali masuk waktu Zuhur, ratusan murid SK Taman Tun Teja akan berbaris
panjang untuk menunaikan solat berjemaah. Namun ruang solat sedia ada hanya
mampu memuatkan 80 orang.
Ada murid terpaksa menunggu giliran, ada guru terpaksa bergegas kerana ruang
terlalu sempit. Lebih mencabar, bilik solat itu terletak di tingkat tiga — tidak mesra
murid & guru, tidak sesuai untuk warga sekolah yang uzur.
Bayangkan kegembiraan mereka jika sebuah surau baharu berdiri megah di kawasan sekolah. Ruang solat yang luas, selesa, dengan kemudahan wuduk,
tandas dan ramp untuk OKU. Surau ini bukan sekadar tempat solat berjemaah, tetapi akan menjadi pusat rohani dan aktiviti:
Kelas pengajian Al-Quran & J-Qaf
Tazkirah dan ceramah agama untuk murid & guru
Program qiamullail, solat hajat & bacaan Yasin
Aktiviti sahsiah murid seperti majlis doa selamat dan sambutan hari kebesaran Islam
Tempat berhimpun untuk aktiviti sekolah seperti motivasi pelajar & bimbingan akademik
Projek Yang Dicadangkan
Struktur Binaan Surau Baharu:
Ruang solat lelaki & perempuan
Ruang wuduk (terbuka & tertutup)
Tandas lelaki & perempuan
Bilik J-Qaf
Stor peralatan & sistem pembesar suara
Ramp (mesra OKU)
Disokong Oleh Jabatan
Pendidikan Daerah (PPD) Gombak & Jabatan Pendidikan Negeri Selangor.
SURAT SOKONGAN PPD KEPADA JPN
SURAT PERMOHONAN SEKOLAH KEPADA PEJABAT PENDIDIKAN DAERAH (PPD)
DOKUMEN/SIJIL PERAKUAN ARAH KIBLAT
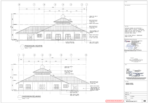
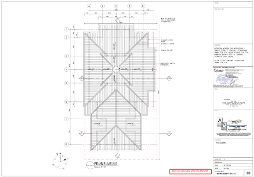
PELAN BANGUNAN SURAU YANG TELAH DISAHKAN OLEH ARKITEK BERTAULIAH
“SUMBANGAN ANDA KEJAYAAN BERSAMA”
Kami di Yayasan EZ Prihatin bersama warga sekolah (Surau SETEJA) sangat berharap dengan kempen yang kami jalankan ini dapat merelisasikan impian pelajar dan guru bagi mendirikan surau yang baru dan lebih selesa.
Dana awal hasil dari sumbangan orang ramai
“Keadaan Terkini Surau Ar-Raudah SK Taman Tun Teja”
Rasulullah SAW bersabda:
"Apabila seorang manusia meninggal dunia, maka terputuslah amalannya kecuali tiga perkara: sedekah jariah, ilmu yang bermanfaat, atau anak soleh yang mendoakannya." (Riwayat Muslim, no. 1631)
BERSAMA EZ PRIHATIN
Membantu Mereka Yang Memerlukan
Muaz Bin Abdullah
Ketua Pegawai Eksekutif - EZ Prihatin
BERSAMA EZ PRIHATIN
Membantu Mereka Yang Memerlukan
Muaz Bin Abdullah
Ketua Pegawai Eksekutif - EZ Prihatin
SUMBANGAN BOLEH DIBUAT MELALUI
Untuk transaksi bantuan secara manual / pemindahan wang tunai secara atas talian atau melalui CDM, anda boleh sumbangkan ke akaun di bawah:
Akaun: Yayasan EZ Prihatin No Akaun: 5624 0563 3644 (MAYBANK) Sila Letakkan Rujukan: SurauSETEJA
Dan hantarkan bukti pembayaran ke pautan WhatsApp berikut: